Valora  

Center 

 
Les surfaces


Découvre les lots disponibles


LOT 01A


Rez-de-chaussée avec accès indépendant - 98,0 m²

 

Deux bureaux fermés, cuisine & salle d'eau - Espace pro prêt à l'emploi.


Découvre le plan

LOT 01B


Rez-de-chaussée avec potentiel d’adaptation - 167,0 m²


Grand plateau lumineux et modulable selon vos besoins.
Espace idéal pour accueillir plusieurs postes de travail, salle de réunion ou espace collaboratif.


Découvre le plan

Vous cherchez une surface plus petite ?
Il est possible d’envisager une location partielle du lot : plusieurs variantes (LOT 01BV01 à 01BV05) proposent différentes configurations dès env. 30 m².
Le lot offre ainsi une grande flexibilité : que vous souhaitiez un plateau complet pour votre équipe ou un espace indépendant plus intime, plusieurs aménagements sont envisageables, sans travaux lourds et selon faisabilité technique.  Les plans présentés sont fournis à titre indicatif et illustrent simplement différentes idées d’aménagement possibles. 

Découvrez-les ci-dessous. 

LOT 01C


Rez-de-chaussée à double hauteur - 54,0 m²


Espace polyvalent bénéficiant d'une belle double hauteur, idéeal pour une activité, un atelier créatif ou un bureau avec volume généreux.
Grande luminosité naturelle et accès direct.


Découvre le plan

LOT 01CV01


Rez-de-chaussée à double hauteur - 91,0 m²


Espace polyvalent bénéficiant d'une belle double hauteur, idéeal pour une activité, un atelier créatif ou un bureau avec volume généreux avec pièce annexe.
Grande luminosité naturelle et accès direct.


Découvre le plan

LOT 01D


Rez-de-chaussée avec porte sectionnelle - 145,0 m²


Grand espace de plain-pied, lumineux et modulable selon les besoins.  Accès indépendant depuis l'extérieur, complété par une porte sectionnelle facilitant le chargement ou l'accès de matériel. Convient pour un bureau, un atelier créatif ou une activité nécessitant un grand volume libre.


Découvre le plan

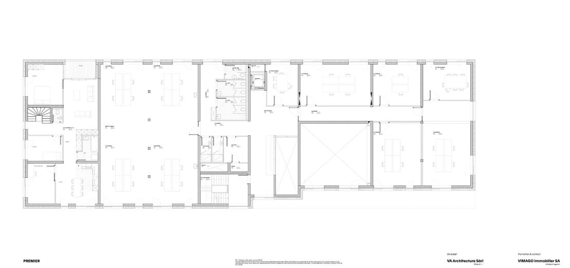
LOT 02B


Premier étage avec potentiel d’adaptation - 167,0 m²


Grand plateau lumineux et modulable selon vos besoins.
Espace idéal pour accueillir plusieurs postes de travail, salle de réunion ou espace collaboratif.


Découvre le plan

LOT 02C


Premier étage bureau lumineux et fonctionnel - 38,0 m²


Espace de bureau lumineux et fonctionnel, idéal pour une petite structure ou une activité indépendante.
Facilement aménageable selon les besoins.


Découvre le plan

LOT 02D


Premier étage bureau lumineux et fonctionnel - 24,0 m²


Espace de bureau lumineux et fonctionnel, idéal pour une petite structure ou une activité indépendante.
Facilement aménageable selon les besoins.


Découvre le plan

LOT 02E


Premier étage bureau lumineux et fonctionnel - 37,0 m²


Espace de bureau lumineux et fonctionnel, idéal pour une petite structure ou une activité indépendante.
Facilement aménageable selon les besoins.


Découvre le plan

LOT 02F


Premier étage bureau lumineux et fonctionnel - 37,0 m²


Espace de bureau lumineux et fonctionnel, idéal pour une petite structure ou une activité indépendante.
Facilement aménageable selon les besoins.


Découvre le plan

LOT 02G


Premier étage bureau lumineux et fonctionnel - 21,00 m²


Espace de bureau lumineux et fonctionnel, idéal pour une petite structure ou une activité indépendante.
Facilement aménageable selon les besoins.


Découvre le plan

LOT 02H


Premier étage bureau lumineux et fonctionnel - 15,70 m²


Espace de bureau lumineux et fonctionnel, idéal pour une petite structure ou une activité indépendante.
Facilement aménageable selon les besoins.


Découvre le plan

Vous êtes intéressé par une ou plusieurs surfaces, ou souhaitez discuter des possibilités de regrouper certains lots ?
Contactez-nous par e-mail sur valora@vimago.ch ou depuis la page de contact pour plus d’informations.

Découvre le bâtiment en entier


Clique sur l'image